1. Accueil
  2. Terrain avec maison
  3. Bédarieux : Maison plain-pied 3 chambres dont une suite parentale, belle pièce à vivre, cellier et garage sur terrain de 372 m²
Retour

Bédarieux : Maison plain-pied 3 chambres dont une suite parentale, belle pièce à vivre, cellier et garage sur terrain de 372 m²

Prix : 205 900 €
Nom du modèle DOMITIA12
Viabilisé oui
Nombre de chambres 3
Dimension terrain 372m²

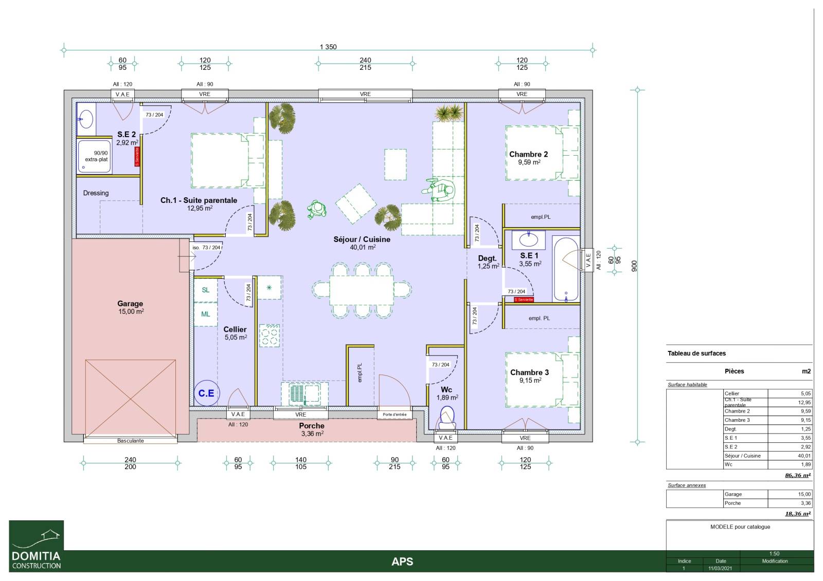
Construisez votre villa plain-pied avec 3 chambres dont une suite parentale, une belle pièce à vivre avec cellier et garage sur terrain de 372 m² à Bédarieux. Ville offrant toutes les commodités et infrastructures situés dans le Haut Languedoc.

Villa plain-pied de 86 m² habitable, au style traditionnel ou contemporain. 

Offrant une belle pièce à vivre lumineuse avec son séjour traversant, pratique avec son cellier et son accès direct au garage. Porche d'entrée.

D'un côté, 2 chambres avec emplacement placard, salle de bains équipée et faïencée avec baignoire, meuble vasque, miroir éclairé et sèche-serviette. WC indépendant.

De l'autre côté, une belle suite parentale avec dressing, salle d'eau équipée et faïencée avec receveur douche extra-plat encastré, meuble vasque, WC et sèche-serviette.

Pompe à chaleur avec chaud et froid et chauffe-eau thermodynamique.

Carrelage dimensions jusqu'au 60x60 cm ou imitation parquet. Large choix de faïences.

Possibilité de plans personnalisés. Norme RE 2020.

Pour plus de renseignements sur cette Maison plain-pied avec 3 chambres dont une suite parentale, une belle pièce à vivre avec cellier et garage, sur beau terrain de 372 m² à Bédarieux, contactez nous au 04.67.905.905 ou via le formulaire ci-dessous.

Nous sommes constructeur de maisons individuelles sur mesure au style traditionnel ou contemporain, avec toutes les garanties liées à un Contrat de Construction de Maisons Individuelles CCMI (assurance dommages ouvrage, garantie de livraison à prix et délai convenus, garantie de parfait achèvement, garantie biennale et décennale). Nous sommes implanté à Béziers depuis 2007.

*Terrain proposé avec notre partenaire foncier selon disponibilités. Hors frais de notaire. Contrat de construction de maison individuelle, dans le cadre de la loi du 19/12/1990 (Hors branchements, peintures intérieures, cuisine et clôtures). Assurances et garanties du constructeur CCMI comprises (RC professionnelle, décennale, dommage ouvrage, garantie de livraison à prix et délai convenu et garantie financière).

Nous écrire
Les champs indiqués par un astérisque (*) sont obligatoires