1. Accueil
  2. Terrain avec maison
  3. Maison plain-pied contemporaine avec 3 chambres dont une suite parentale et garage sur terrain de 351 m² à MARSEILLAN, proche Agde, Sète, Béziers et Montpellier
Retour

Maison plain-pied contemporaine avec 3 chambres dont une suite parentale et garage sur terrain de 351 m² à MARSEILLAN, proche Agde, Sète, Béziers et Montpellier

Prix : 318 500 €
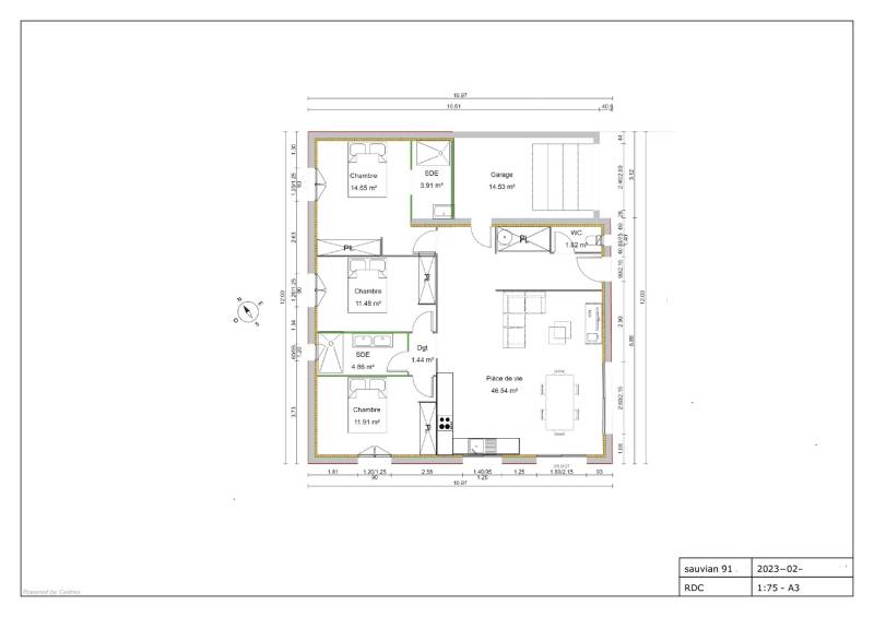
Nom du modèle DOMITIA157
Viabilisé OUI
Nombre de chambres 3
Dimension terrain 351m²

Construisez votre maison plain-pied contemporaine avec 3 chambres dont une suite parentale et garage sur terrain de 351 m² à Marseillan. Idéalement situé entre Mer Méditerranée et Etang de Thau, à proximité d'Agde, Sète, Béziers et Montpellier. Village offrant toutes les commodités.

Maison plain-pied de 98 m² habitable + garage, au style contemporain avec son mixage toiture terrasse et toiture tuile et ses menuiseries grises anthracites.

Une belle pièce à vivre lumineuse, pratique avec son accès direct au garage.

Un WC indépendant avec fenêtre situé dans le hall d'entrée avec placard.

Une suite parentale, avec emplacement placard, une salle d'eau équipée et faïencée, avec un receveur douche extra-plat encastré, un meuble vasque, un miroir éclairé et un sèche-serviette. 

2 belles chambres de +11 m² avec emplacement placard, une salle de bains équipée et faïencée avec un receveur douche extra-plat encastré, un meuble vasque, un miroir éclairé et un sèche-serviette.

Chauffage et climatisation par système de Pompe à chaleur (chaud et froid) et chauffe-eau thermodynamique.

Carrelage dimensions jusqu'au 60x60 cm ou imitation parquet. Large choix de faïences.

Possibilité de plans personnalisés. Norme RE 2020.

Pour plus de renseignements sur cette Maison plain-pied contemporaine avec 3 chambres dont une suite parentale et garage sur terrain de 351 m² à MARSEILLAN. Idéalement situé entre Mer Méditerranée et Etang de Thau, à proximité d'Agde, Sète, Béziers et Montpellier, contactez nous au 04.67.905.905 ou via le formulaire ci-dessous.

Nous sommes constructeur de maisons individuelles sur mesure au style traditionnel ou contemporain, avec toutes les garanties liées à un Contrat de Construction de Maisons Individuelles CCMI (assurance dommages ouvrage, garantie de livraison à prix et délai convenus, garantie de parfait achèvement, garantie biennale et décennale). Nous sommes implanté à Béziers depuis 2007.

*Terrain proposé avec notre partenaire foncier selon disponibilités. Hors frais de notaire. Contrat de construction de maison individuelle, dans le cadre de la loi du 19/12/1990 (Hors branchements, peintures intérieures, cuisine et clôtures). Assurances et garanties du constructeur CCMI comprises (RC professionnelle, décennale, dommage ouvrage, garantie de livraison à prix et délai convenu et garantie financière).

Nous écrire
Les champs indiqués par un astérisque (*) sont obligatoires