1. Accueil
  2. Terrain avec maison
  3. BESSAN : Maison plain-pied avec 3 chambres, garage intégré et toiture 4 pentes sur terrain de 355 m² proche Agde, Pézenas, Béziers et A75
Retour

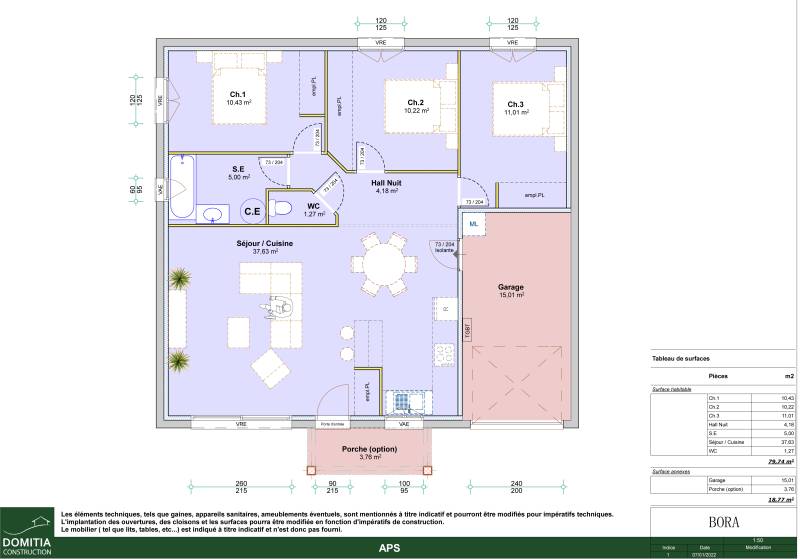
BESSAN : Maison plain-pied avec 3 chambres, garage intégré et toiture 4 pentes sur terrain de 355 m² proche Agde, Pézenas, Béziers et A75

Prix : 263 000 €
Nom du modèle DOMITIA80
Viabilisé OUI
Nombre de chambres 3
Dimension terrain 355m²

Construisez votre maison plain-pied de 80 m² avec garage intégré sur terrain de 355 m² situé à Bessan. Commune offrant toutes les commodités et idéalement situé à proximité d'Agde, Pézenas, A75 et Béziers.

Maison plain-pied de 80 m² offrant une belle pièce à vivre lumineuse et pratique avec son accès au garage intégré. Toiture 4 pentes.

3 chambres avec emplacement placard, une salle de bains équipée et faïencée avec un meuble vasque, miroir éclairé, baignoire ou receveur douche extra-plat encastré ou douche à l'italienne.

Pompe à chaleur (chaud et froid), sèche-serviette dans la salle de bains et chauffe-eau thermodynamique.

Carrelage dimensions jusqu'au 60x60 cm ou imitation parquet. Large choix de faïences.

Norme RE 2020.

Pour plus de renseignements sur cette Maison plain-pied de 80 m² avec 3 chambres, garage intégré et toiture 4 pentes sur terrain de 355 m² à Bessan, contactez nous au 04.67.905.905 ou via le formulaire ci-dessous.

Nous sommes constructeur de maisons individuelles sur mesure au style traditionnel ou contemporain, avec toutes les garanties liées à un Contrat de Construction de Maisons Individuelles CCMI (assurance dommages ouvrage, garantie de livraison à prix et délai convenus, garantie de parfait achèvement, garantie biennale et décennale). Nous sommes implanté à Béziers depuis 2007.

*Terrain proposé avec notre partenaire foncier selon disponibilités. Hors frais de notaire. Contrat de construction de maison individuelle, dans le cadre de la loi du 19/12/1990 (Hors branchements, peintures intérieures, cuisine, clôtures). Assurances et garanties du constructeur CCMI comprises (RC professionnelle, décennale, dommage ouvrage, garantie de livraison à prix et délai convenu et garantie financière).

Nous écrire
Les champs indiqués par un astérisque (*) sont obligatoires