1. Accueil
  2. Terrain avec maison
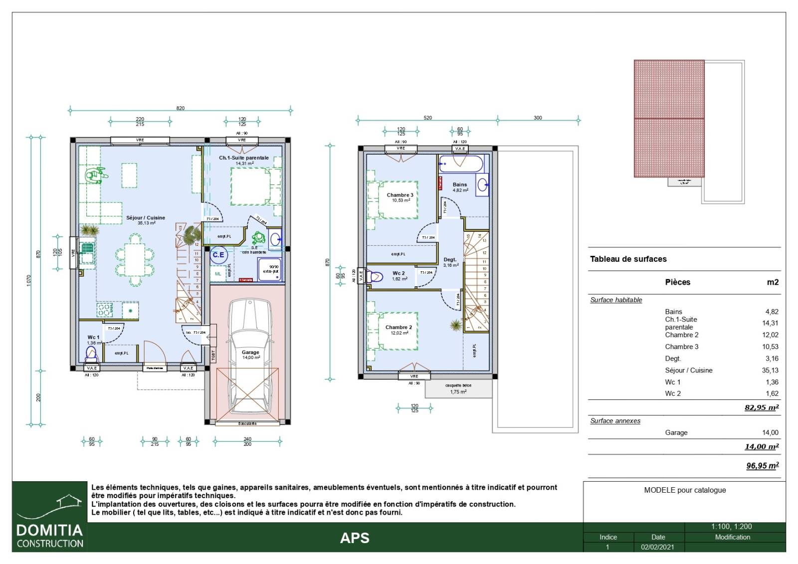
  3. Béziers : Maison à étage 3 chambres avec suite parentale au rez-de-chaussée sur terrain de 220 m²
Retour

Béziers : Maison à étage 3 chambres avec suite parentale au rez-de-chaussée sur terrain de 220 m²

Prix : 256 000 €
Nom du modèle DOMITIA17
Viabilisé OUI
Nombre de chambres 3
Dimension terrain 220m²

Construisez votre Maison à étage 3 chambres avec suite parentale au rez-de-chaussée sur terrain de 220 m² à Béziers. Ville dynamique située entre Vignes et Mer, offrant toutes les commodités et infrastructures.

Grande pièce à vivre avec accès au garage. 1 suite parentale au rez-de-chaussée avec dressing, salle d'eau équipée et faïencée avec meuble vasque, miroir éclairé et douche à l'italienne. WC indépendant.

A l'étage, 2 belles chambres, salle de bains équipée et faïencée avec meuble vasque, miroir éclairé et baignoire. 1 WC indépendant.

Pompe à chaleur, sèche-serviettes dans les salles d'eau et Chauffe-eau thermodynamique. Volets roulants motorisés et centralisés. 

Possibilité de plans personnalisés. Norme RE 2020.

Pour plus de renseignements sur cette Maison à étage 3 chambres avec suite parentale au rez-de-chaussée sur terrain de 220 m² à Béziers, contactez-nous au 04.67.905.905 ou par mail à contact@domitiaconstruction.fr

Nous sommes constructeur de maisons individuelles sur mesure au style traditionnel ou contemporain, avec toutes les garanties liées à un Contrat de Construction de Maisons Individuelles CCMI (assurance dommages ouvrage, garantie de livraison à prix et délai convenus, garantie de parfait achèvement, garantie biennale et décennale).

Nous sommes implanté à Béziers depuis 2007.

*Terrain proposé avec notre partenaire foncier selon disponibilités. Hors frais de notaire. Contrat de construction de maison individuelle, dans le cadre de la loi du 19/12/1990 (Hors branchements, peintures intérieures, cuisine et clôtures). Assurances et garanties du constructeur CCMI comprises (RC professionnelle, décennale, dommage ouvrage, garantie de livraison à prix et délai convenu et garantie financière).

Nous écrire
Les champs indiqués par un astérisque (*) sont obligatoires