1. Accueil
  2. Terrain avec maison
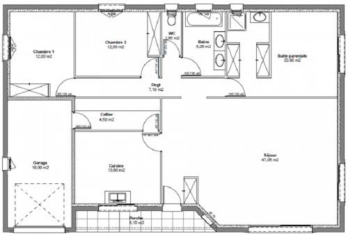
  3. CAZOULS-LES-BEZIERS : Maison plain-pied de 124 m² habitables avec 4 chambres, suite parentale, cuisine séparée et cellier sur terrain de 514 m² proche Béziers
Retour

CAZOULS-LES-BEZIERS : Maison plain-pied de 124 m² habitables avec 4 chambres, suite parentale, cuisine séparée et cellier sur terrain de 514 m² proche Béziers

Prix : 322 000 €
Nom du modèle DOMITIA33
Viabilisé OUI
Nombre de chambres 4
Dimension terrain 514m²

Construisez votre maison plain-pied de 124 m² habitable avec 4 chambres, suite parentale, cuisine séparée et cellier sur beau terrain de 514 m² à CAZOULS-LES-BEZIERS.

Village dynamique offrant toutes les commodités et infrastructures, situé à proximité de Béziers. 

4 chambres dont 1 suite parentale avec dressing, salle d'eau équipée et faïencée (meuble vasque avec miroir éclairé et douche à l'italienne).

Salle de bains équipée et faïencée (meuble double vasque avec miroir éclairé, baignoire).

Grande pièce à vivre avec cuisine fermée ou ouverte, pratique avec son cellier attenant. Garage 18 m² et porche 6.10 m². Pompe à chaleur, sèche-serviettes dans les salles d'eau et chauffe-eau thermodynamique. Volets roulants motorisés et centralisés. Large choix de faïences, carrelage dimensions jusqu'au 60x60 cm ou imitation parquet. 

Possibilité de plans personnalisés. Norme RE 2020

Pour plus de renseignements sur cette maison plain-pied 124 m² avec 4 chambres, suite parentale, cuisine séparée et cellier sur terrain de 514 m² à CAZOULS-LES-BEZIERS, contactez-nous au 04.67.905.905 ou par mail à contact@domitiaconstruction.fr

Nous sommes constructeur de maisons individuelles sur mesure au style traditionnel ou contemporain, avec toutes les garanties liées à un Contrat de Construction de Maisons Individuelles CCMI (assurance dommages ouvrage, garantie de livraison à prix et délai convenus, garantie de parfait achèvement, garantie biennale et décennale).

Nous sommes implanté à Béziers depuis 2007.

*Terrain proposé avec notre partenaire foncier selon disponibilités. Hors frais de notaire. Contrat de construction de maison individuelle, dans le cadre de la loi du 19/12/1990 (Hors branchements, peintures intérieures, cuisine, clôtures). Assurances et garanties du constructeur CCMI comprises (RC professionnelle, décennale, dommage ouvrage, garantie de livraison à prix et délai convenu et garantie financière).

Nous écrire
Les champs indiqués par un astérisque (*) sont obligatoires