1. Accueil
  2. Terrain avec maison
  3. Exclusivité : Maison plain-pied 2 chambres avec ou sans garage à proximité de Gignac
Retour

Exclusivité : Maison plain-pied 2 chambres avec ou sans garage à proximité de Gignac

Prix : 279 600 €
Nom du modèle DOMITIA5
Viabilisé OUI
Nombre de chambres 2
Dimension terrain 506m²

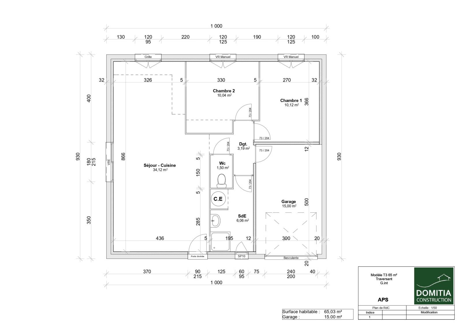
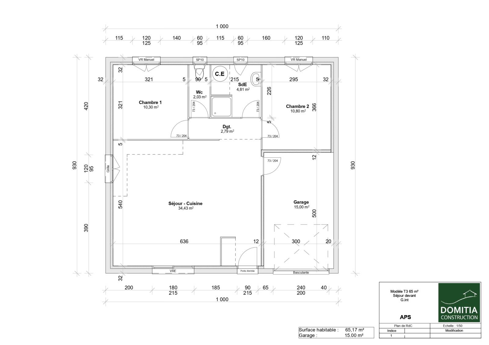
Construisez votre maison plain-pied de 65 m² comprenant 2 chambres, sur beau terrain de 506 m² à Saint Bauzille-de-la Sylve situé dans petit lotissement en plein cœur du vignoble et de la garrigue . Village situé à proximité de Gignac, Saint André-de-Sangonis, Canet, Clermont l'Hérault. A visiter sans tarder !

Maison plain-pied de 65 m² avec belle pièce à vivre lumineuse et pratique avec son accès au garage.

2 chambres avec emplacement placard, salle d'eau équipée avec meuble vasque éclairée et douche à l'italienne. WC indépendant.  Se décline en plusieurs versions pour s'adapter parfaitement au terrain.

Carrelage dimensions jusqu'aux 60x60 cm ou imitation parquet, large choix de faïences. 

Pompe à chaleur, sèche-serviettes dans la salle d'eau. Volets roulants motorisés et centralisés. 

Norme RE 2020. Possibilité de plans personnalisés.

Pour plus de renseignements sur cette maison plain-pied 2 chambres avec ou sans garage à proximité de Gignac, contactez-nous au 04.67.905.905 ou par mail contact@domitiaconstruction.fr

Nous sommes constructeur de maisons individuelles sur mesure au style traditionnel ou contemporain. Nous sommes implantés à Béziers depuis 2007.

*Terrain proposé avec notre partenaire foncier selon disponibilités. Hors frais de notaire. Contrat de construction de maison individuelle, dans le cadre de la loi du 19/12/1990 (Hors branchements, peintures intérieures, cuisine et clôtures). Assurances et garanties du constructeur CCMI comprises (RC professionnelle, décennale, dommage ouvrage, garantie de livraison à prix et délai convenu et garantie financière). 

Nous écrire
Les champs indiqués par un astérisque (*) sont obligatoires