1. Accueil
  2. Plans de maisons
  3. Plain-pied
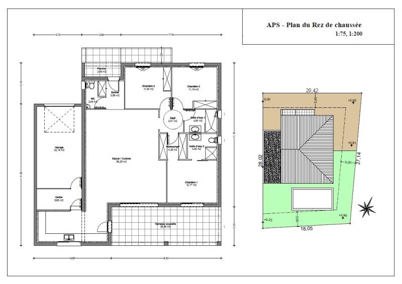
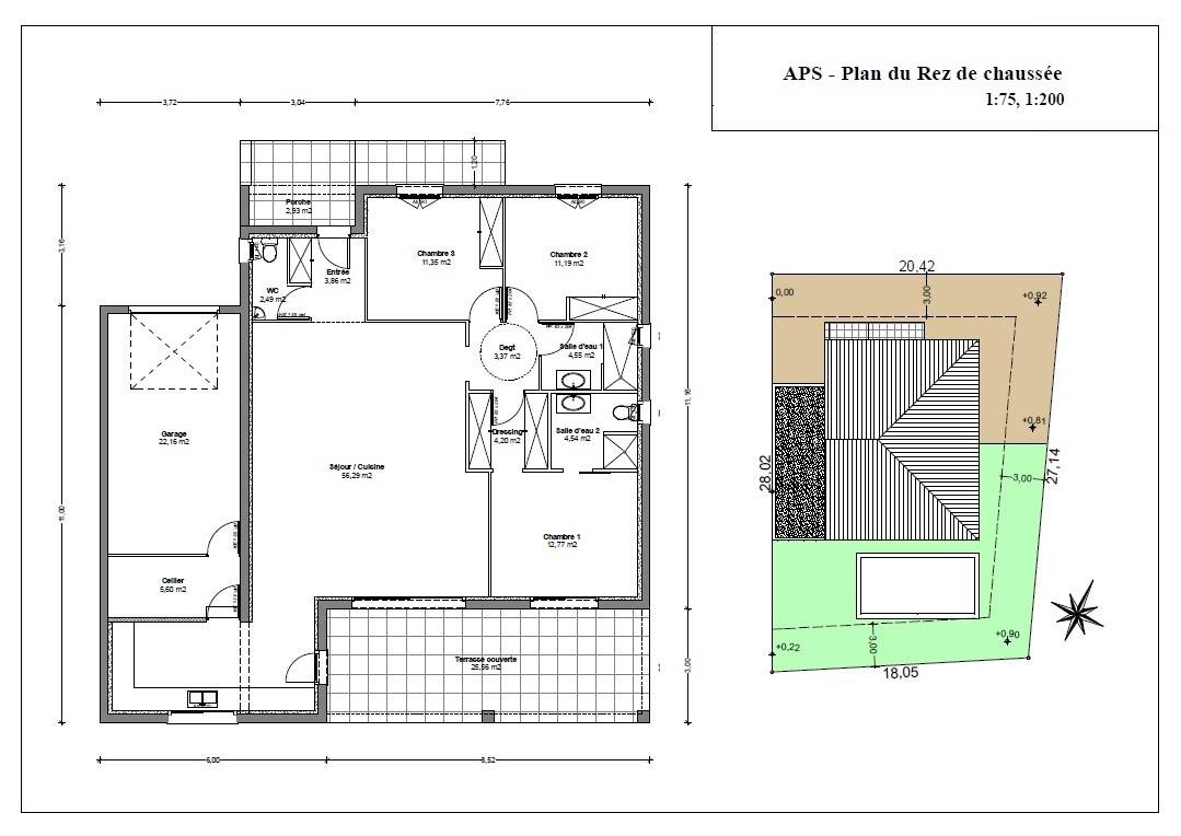
  4. Grande maison plain-pied de 115 m² avec suite parentale, garage et terrasse couverte
Retour

Grande maison plain-pied de 115 m² avec suite parentale, garage et terrasse couverte

Nombre de chambres 3

Grande maison plain-pied de 115 m²  habitable avec une suite parentale, un garage et une terrasse couverte.

Style traditionnel ou contemporain.

Une belle pièce à vivre donnant sur une cuisine semi-fermée avec un grand garage attenant.

3 chambres dont une suite parentale avec dressing et salle d'eau équipée et faïencée comprenant une douche à l’italienne, un meuble vasque avec miroir éclairé et sèche-serviette.

Une salle de bains équipée et faïencée comprenant une baignoire, un meuble vasque avec miroir éclairé et sèche-serviette. 

Un WC indépendant.

 

Carrelage dimension jusqu'au 60x60 cm ou imitation parquet. Large choix de faïences.

Pompe à chaleur (chaud et froid) et chauffe-eau thermodynamique.

Aux normes RE 2020. A personnaliser selon vos envies et votre budget !

Nous sommes constructeur de maisons individuelles sur mesure au style traditionnel ou contemporain, avec toutes les garanties liées à un Contrat de Construction de Maisons Individuelles CCMI (assurance dommages ouvrage, garantie de livraison à prix et délai convenus, garantie de parfait achèvement, garantie biennale et décennale). Nous sommes implanté à Béziers depuis 2007.

Pour obtenir un devis gratuitement sur la construction de cette Belle maison plain-pied de 115 m² avec suite parentale, garage et terrasse couverte, contactez-nous au 04.67.905.905 ou via le formulaire ci-dessous.

Nous écrire
Les champs indiqués par un astérisque (*) sont obligatoires