1. Accueil
  2. Plans de maisons
  3. Plain-pied
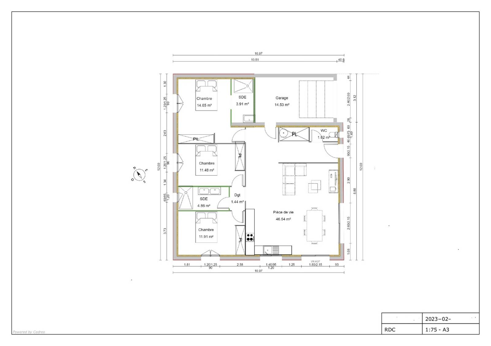
  4. Maison plain-pied contemporaine de 96 m² habitable + garage, avec 3 chambres dont une suite parentale
Retour

Maison plain-pied contemporaine de 96 m² habitable + garage, avec 3 chambres dont une suite parentale

Nombre de chambres 3

Maison plain-pied contemporaine de 96 m² habitable + garage, 3 chambres dont une suite parentale. Toiture 4 pans et toiture terrasse. Menuiseries grises anthracites.

Belle pièce à vivre de +40 m², lumineuse avec ses baies vitrées. Garage intégré.

Hall d'entrée avec placard, WC indépendant avec fenêtre.

3 grandes chambres dont une suite parentale avec placard, salle d’eau équipée et faïencée avec un receveur douche extra-plat encastré ou une douche à l'italienne, un meuble vasque avec miroir éclairé.

Une Salle de bains équipée et faïencée avec baignoire, meuble vasque avec miroir éclairé. 

Carrelage dimension jusqu'au 60x60 cm ou imitation parquet. Large choix de faïences.

Pompe à chaleur (chaud et froid)sèche-serviette pour la salle de bains et la salle d'eau.

Chauffe-eau thermodynamique. Aux normes RE 2020. 

A personnaliser selon vos envies et votre budget !

Nous sommes constructeur de maisons individuelles sur mesure au style traditionnel ou contemporain, avec toutes les garanties liées à un Contrat de Construction de Maisons Individuelles CCMI (assurance dommages ouvrage, garantie de livraison à prix et délai convenus, garantie de parfait achèvement, garantie biennale et décennale). Nous sommes implanté à Béziers depuis 2007.

Pour obtenir un devis gratuitement sur la construction de cette Maison plain-pied contemporaine de 96 m² habitable + garage, 3 chambres dont une suite parentale, contactez-nous au 04.67.905.905 ou via le formulaire ci-dessous.

Nous écrire
Les champs indiqués par un astérisque (*) sont obligatoires