1. Accueil
  2. Terrain avec maison
  3. LIGNAN-SUR-ORB : Maison contemporaine plain-pied 3 chambres avec suite parentale sur terrain de 437 m² à LIGNAN-SUR-ORB aux portes de Béziers
Retour

LIGNAN-SUR-ORB : Maison contemporaine plain-pied 3 chambres avec suite parentale sur terrain de 437 m² à LIGNAN-SUR-ORB aux portes de Béziers

Prix : 289 000 €
Nom du modèle DOMITIA49
Viabilisé OUI
Nombre de chambres 3
Dimension terrain 437m²

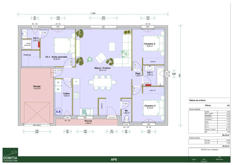
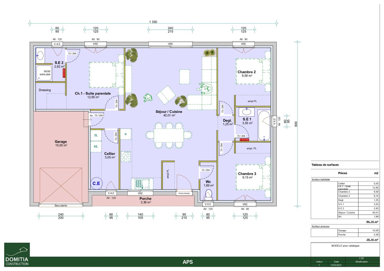
Construisez votre Maison contemporaine plain-pied de 86 m² avec 3 chambres dont une suite parentale sur terrain de 437 m² à LIGNAN-SUR-ORB. Village prisé offrant toutes les commodités et infrastructures, situé aux portes de Béziers. 

Grande pièce à vivre lumineuse avec son séjour traversant et son accès au garage. S'adapte à l'exposition de votre terrain !

1 suite parentale avec dressing et salle de toilette équipée avec meuble vasque éclairé et douche à l'italienne.

2 chambres, salle de bains équipée et faïencée avec meuble vasque, miroir éclairé et baignoire.

WC indépendant. Pompe à chaleur, sèche-serviettes dans les salles d'eau et chauffe-eau thermodynamique. Volets roulants motorisés et centralisés. Large choix de carrelage et de faïences. Possibilité de plans personnalisés. Norme RE 2020. 

Pour plus de renseignements sur cette Maison contemporaine plain-pied 3 chambres avec suite parentale sur terrain de 437 m² à LIGNAN-SUR-ORB, contactez-nous au 04.67.905.905 ou par mail à contact@domitiaconstruction.fr

Nous sommes constructeur de maisons individuelles sur mesure au style traditionnel ou contemporain, avec toutes les garanties liées à un Contrat de Construction de Maisons Individuelles CCMI (assurance dommages ouvrage, garantie de livraison à prix et délai convenus, garantie de parfait achèvement, garantie biennale et décennale). Nous sommes implanté à Béziers depuis 2007.

*Terrain proposé avec notre partenaire foncier selon disponibilités. Hors frais de notaire. Contrat de construction de maison individuelle, dans le cadre de la loi du 19/12/1990 (Hors branchements, peintures intérieures, cuisine et clôtures). Assurances et garanties du constructeur CCMI comprises (RC professionnelle, décennale, dommage ouvrage, garantie de livraison à prix et délai convenu et garantie financière).

Nous écrire
Les champs indiqués par un astérisque (*) sont obligatoires