1. Accueil
  2. Plans de maisons
  3. À étage
  4. Maison à étage 3 chambres au style contemporain ou traditionnel avec ou sans garage
Retour

Maison à étage 3 chambres au style contemporain ou traditionnel avec ou sans garage

Nombre de chambres 3

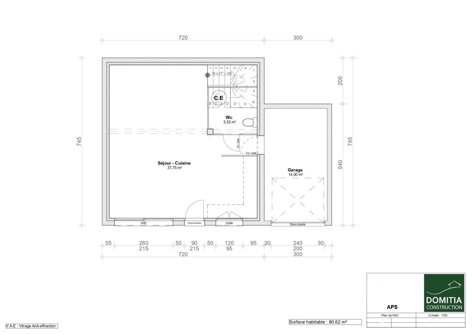
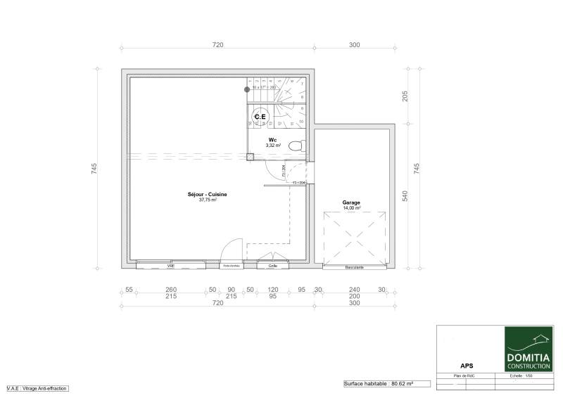
Construisez votre maison à étage 80 m² avec 3 chambres au style contemporain ou traditionnel, avec ou sans garage, disponible en version toiture tuiles ou toiture terrasse. 

A personnaliser selon vos envies et votre budget !

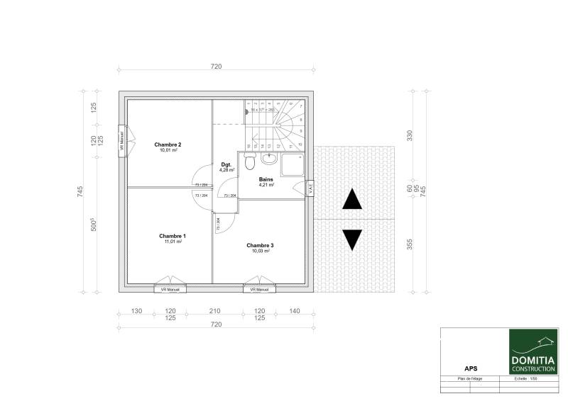
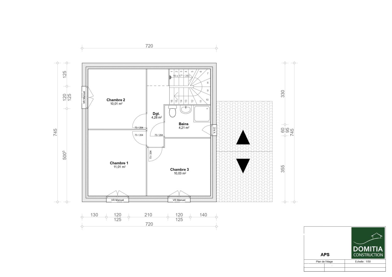
A l’étage : 3 chambres, salle de bains équipée et faïencée avec un receveur douche extra-plat ou une baignoire, un meuble vasque avec un miroir éclairé, un sèche-serviette et  un WC.

Une belle pièce à vivre de +37 m², un WC indépendant, accès direct au garage accolé.

Pompe à chaleur (chaud et froid) et chauffe-eau thermodynamique.

Carrelage dimensions 60x60 cm ou imitation parquet ! Large choix de faïences !

Aux normes RE 2020.

Nous sommes constructeur de maisons individuelles sur mesure au style traditionnel ou contemporain, avec toutes les garanties liées à un Contrat de Construction de Maisons Individuelles CCMI (assurance dommages ouvrage, garantie de livraison à prix et délai convenus, garantie de parfait achèvement, garantie biennale et décennale). Nous sommes implanté à Béziers depuis 2007.

Pour obtenir un devis gratuitement sur la construction de cette maison à étage 3 chambres au style contemporain ou traditionnel avec ou sans garage, contactez-nous au 04.67.905.905 ou via le formulaire ci-dessous.

Nous écrire
Les champs indiqués par un astérisque (*) sont obligatoires