1. Accueil
  2. Plans de maisons
  3. À étage
  4. Maison contemporaine à toiture tuile avec un bureau, 4 chambres dont une suite parentale au rez-de-chaussée, grand cellier et garage
Retour

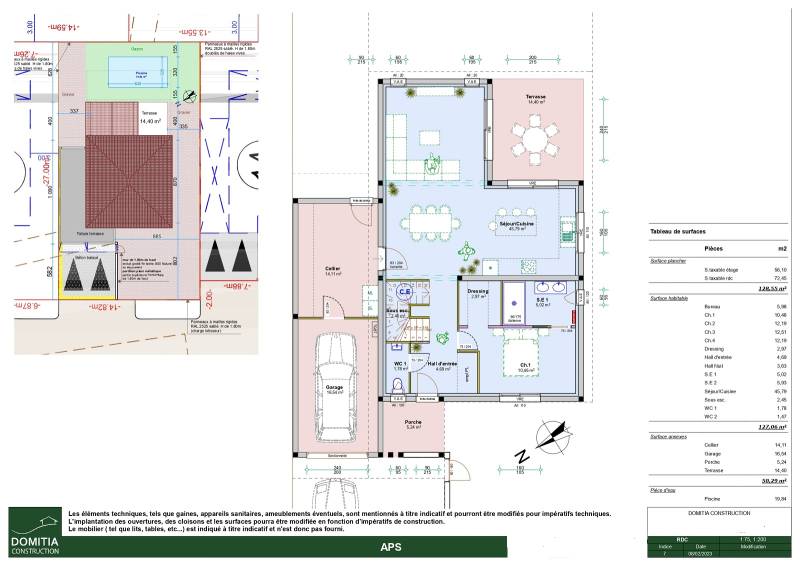
Maison contemporaine à toiture tuile avec un bureau, 4 chambres dont une suite parentale au rez-de-chaussée, grand cellier et garage

Nombre de chambres 4

Construisez votre maison contemporaine avec un bureau, 4 chambres dont une suite parentale au rez-de-chaussée, grand cellier et garage.

Une belle pièce à vivre en L de +45 m², lumineuse avec ses baies vitrées. Pratique avec son grand cellier de 14 m² et son accès au garage. Terrasse carrelée. Porche d'entrée.

Hall d'entrée avec placard et un WC indépendant.

Une suite parentale au rez-de-chaussée avec un grand dressing, une salle de toilette équipée et faïencée comprenant un meuble double vasque, miroir éclairé, une douche à l'italienne et un sèche-serviettes.

A l'étage : 3 grandes chambres de 12 m² avec emplacement placard, un bureau, une salle de bains équipée et faïencée comprenant un meuble double vasque, miroir éclairé, une baignoire, un receveur douche extra-plat et un sèche-serviette. Un Wc indépendant avec fenêtre.

Carrelage dimensions jusqu'au 60x60 cm ou imitation parquet. Large choix de faïences.

Pompe à chaleur (chaud et froid) et chauffe-eau thermodynamique.

Aux normes RE2020. A personnaliser selon vos envies !

Nous sommes constructeur de maisons individuelles sur mesure au style traditionnel ou contemporain, avec toutes les garanties liées à un Contrat de Construction de Maisons Individuelles CCMI (assurance dommages ouvrage, garantie de livraison à prix et délai convenus, garantie de parfait achèvement, garantie biennale et décennale). Nous sommes implanté à Béziers depuis 2007.

Pour obtenir un devis gratuitement sur la construction de cette maison contemporaine à toture tuile avec un bureau, 4 chambres dont une suite parentale au rez-de-chaussée, grand cellier et garage, contactez-nous au 04.67.905.905 ou via le formulaire ci-dessous.

Nous écrire
Les champs indiqués par un astérisque (*) sont obligatoires