1. Accueil
  2. Plans de maisons
  3. Plain-pied
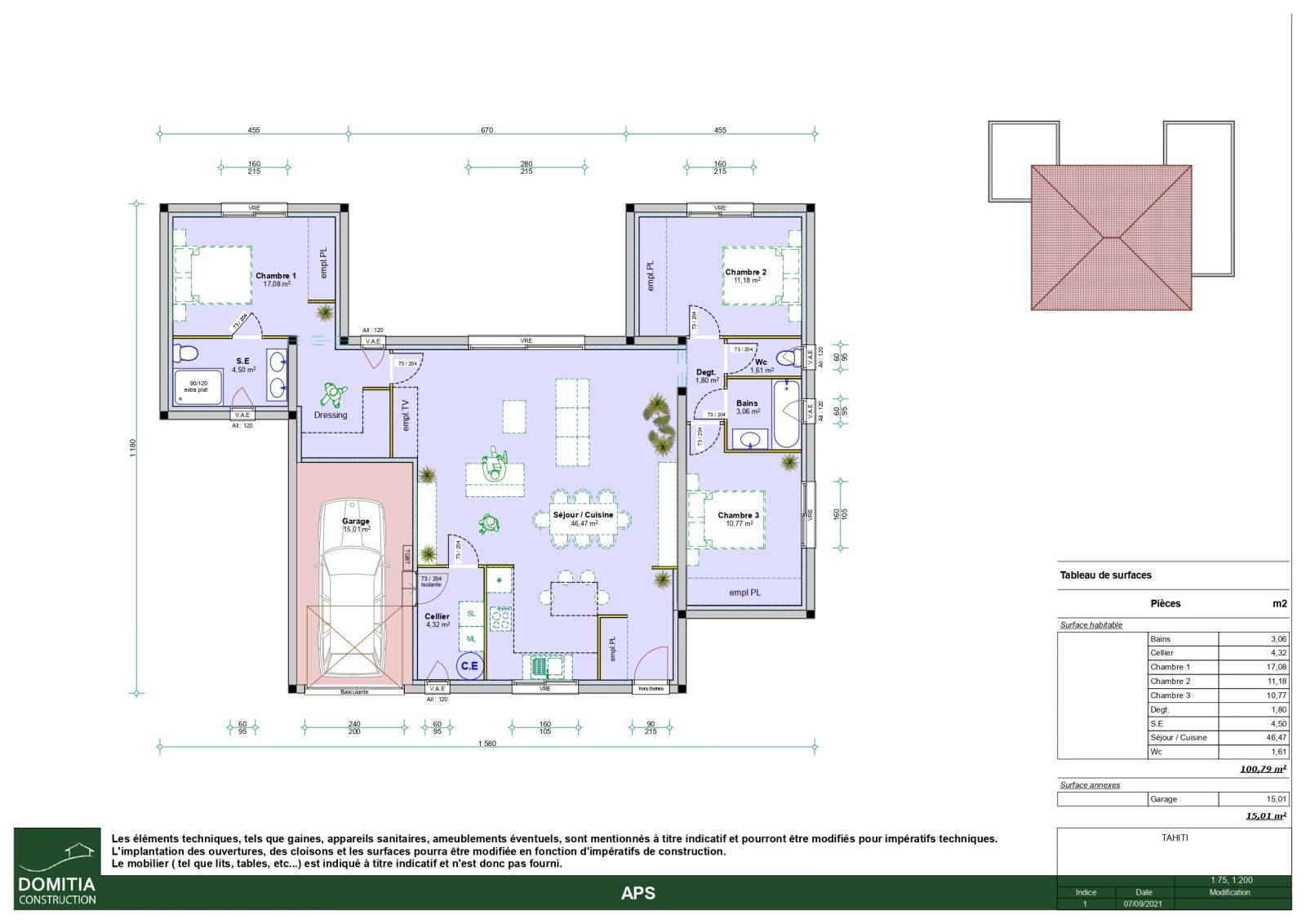
  4. Maison contemporaine plain-pied en U de 100 m² avec 3 chambres dont une suite parentale
Retour

Maison contemporaine plain-pied en U de 100 m² avec 3 chambres dont une suite parentale

Nombre de chambres 3

Maison contemporaine en U de 100 m² habitable + garage, 3 chambres dont une suite parentale. Mixage de toiture terrasse et toiture tuiles 4 pans. Menuiseries de couleur gris anthracite ou blanche.

Grande pièce à vivre de +46 m² très lumineuse avec son séjour traversant, cellier attenant à la cuisine et garage. 

D'un côté : 2 chambres avec emplacement placard, une salle de bains équipée et faïencée avec baignoire, un meuble vasque avec miroir éclairé. WC indépendant avec fenêtre.

De l'autre côté : une suite parentale avec dressing, salle d'eau équipée et faïencée comprenant douche à l'italienne avec meuble double vasque, miroir éclairé et WC. 

Pompe à chaleur  (chaud et froid) et chauffe-eau thermodynamique.

Carrelage grand format dimensions 60x60 cm ou imitation parquet. Large choix de faïences.

Aux normes RE 2020. Possibilité de plans personnalisés. A personnaliser selon vos envies et votre budget !

Nous sommes constructeur de maisons individuelles sur mesure au style traditionnel ou contemporain, avec toutes les garanties liées à un Contrat de Construction de Maisons Individuelles CCMI (assurance dommages ouvrage, garantie de livraison à prix et délai convenus, garantie de parfait achèvement, garantie biennale et décennale). Nous sommes implanté à Béziers depuis 2007.

Pour obtenir un devis gratuitement sur la construction de cette Maison contemporaine plain-pied en U de 100 m² avec 3 chambres dont 1 suite parentale, contactez-nous au 04.67.905.905 ou via le formulaire ci-dessous.

Nous écrire
Les champs indiqués par un astérisque (*) sont obligatoires