1. Accueil
  2. Plans de maisons
  3. Plain-pied
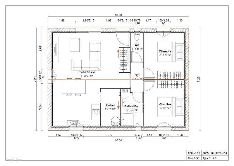
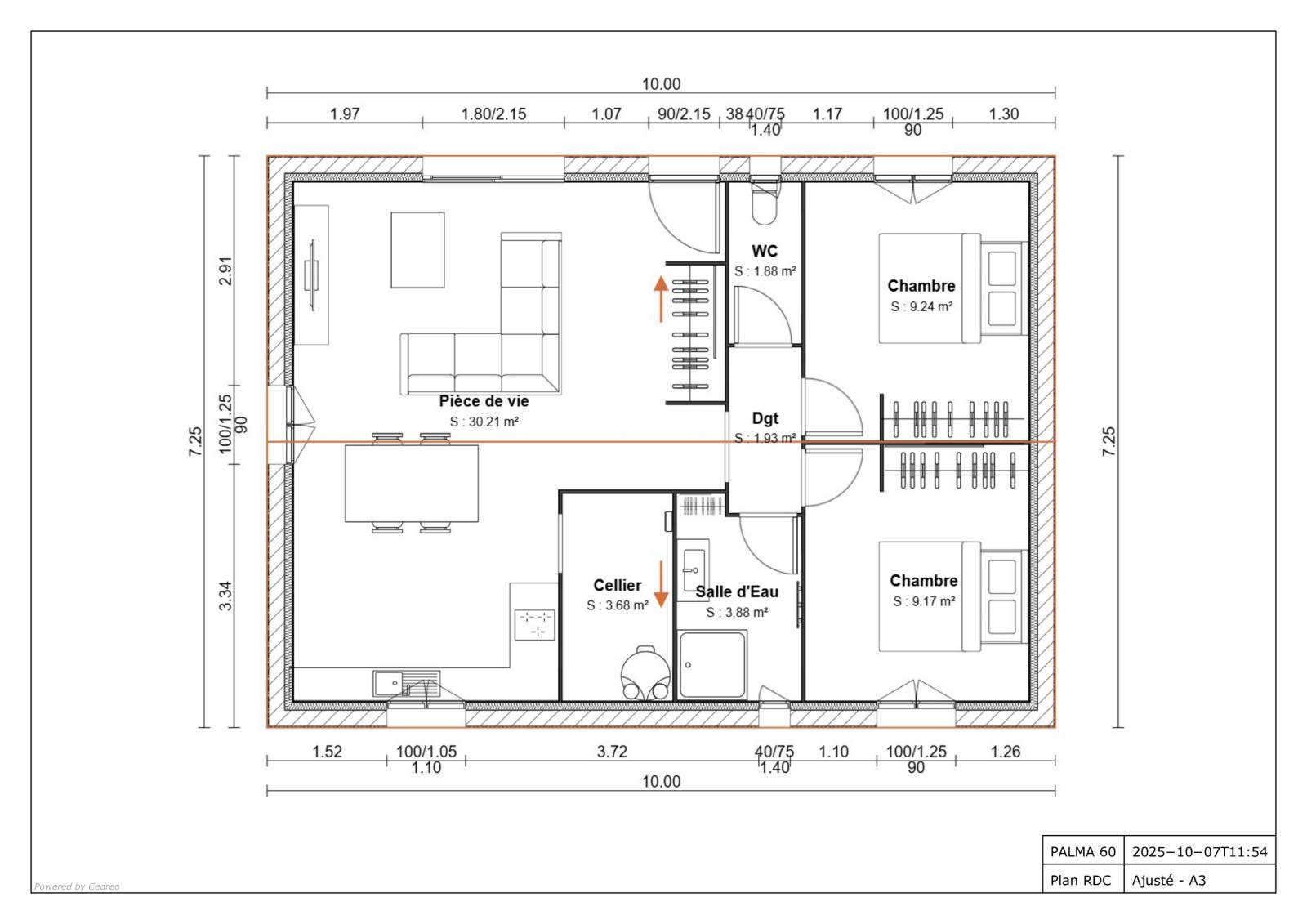
  4. Maison plain-pied 2 chambres, lumineuse avec son séjour traversant et pratique avec son cellier collé à la cuisine
Retour

Maison plain-pied 2 chambres, lumineuse avec son séjour traversant et pratique avec son cellier collé à la cuisine

Nombre de chambres 2

Construisez votre maison plain-pied disponible à partir de 60 m², en version 2 chambres, avec cellier, idéal pour une 1ère acquisition ou résidence secondaire !

Belle pièce à vivre lumineuse avec son séjour traversant, pratique avec son cellier accolé à la cuisine

2 chambres, salle de bains équipée et faïencée comprenant receveur douche extra-plat ou douche à l'italienne avec meuble vasque et miroir éclairé, WC indépendant avec fenêtre. 

Pompe à chaleur et sèche-serviette dans salle de bains. Chauffe-eau thermodynamique.

Large choix de carrelage et de faïences !

Aux normes RE 2020A personnaliser selon vos envies et votre budget !

Nous sommes constructeur de maisons individuelles sur mesure au style traditionnel ou contemporain, avec toutes les garanties liées à un Contrat de Construction de Maisons Individuelles CCMI (assurance dommages ouvrage, garantie de livraison à prix et délai convenus, garantie de parfait achèvement, garantie biennale et décennale). Nous sommes implanté à Béziers depuis 2007.

Pour obtenir un devis gratuitement sur la construction de cette maison plain-pied disponible à partir de 60 m², en version 2  chambres, sans garage, idéal pour une 1ère acquisition ou résidence secondaire, contactez-nous au 04.67.905.905 ou via le formulaire ci-dessous.

 

Nous écrire
Les champs indiqués par un astérisque (*) sont obligatoires