1. Accueil
  2. Plans de maisons
  3. Plain-pied
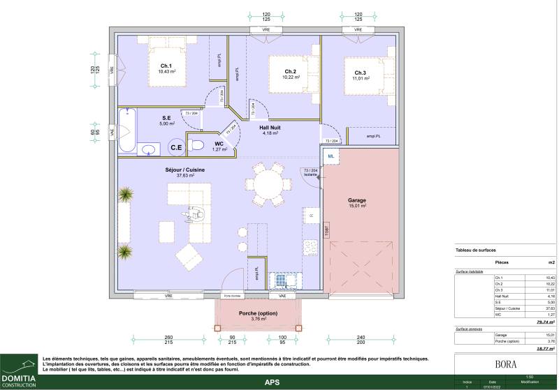
  4. Maison plain-pied avec 3 chambres et garage intégré, toiture 2 ou 4 pentes
Retour

Maison plain-pied avec 3 chambres et garage intégré, toiture 2 ou 4 pentes

Nombre de chambres 3

Maison plain-pied  offrant 3 chambres et garage intégré, toiture 2 ou 4 pentes, au style contemporain ou traditionnel.

Salle de bains équipée et faïencée avec douche à l'italienne ou baignoire, meuble vasque avec miroir éclairé et sèche-serviette.

 Grande pièce à vivre lumineuse de 37 m² avec sa grande baie vitrée.

WC indépendant avec fenêtre.

Carrelage dimension jusqu'au 60x60 cm ou imitation parquet. Large choix de faïences.

Pompe à chaleur (chaud et froid) et chauffe-eau thermodynamique.

Aux normes RE 2020 . A personnaliser selon vos envies et votre budget !

Nous sommes constructeur de maisons individuelles sur mesure au style traditionnel ou contemporain, avec toutes les garanties liées à un Contrat de Construction de Maisons Individuelles CCMI (assurance dommages ouvrage, garantie de livraison à prix et délai convenus, garantie de parfait achèvement, garantie biennale et décennale). Nous sommes implanté à Béziers depuis 2007.

Pour obtenir un devis gratuitement sur la construction de cette maison plain-pied avec 3 chambres et garage intégré, contactez-nous au 04.67.905.905 ou via le formulaire ci-dessous.

Nous écrire
Les champs indiqués par un astérisque (*) sont obligatoires