1. Accueil
  2. Plans de maisons
  3. Plain-pied
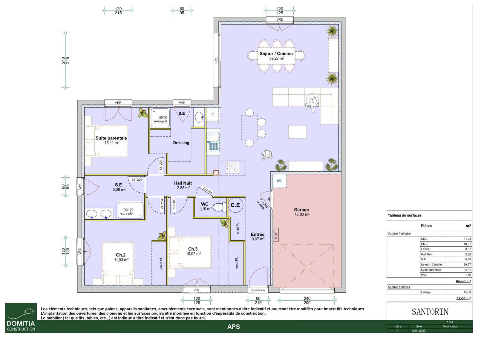
  4. Maison plain-pied en L au style contemporain ou traditionnel avec suite parentale
Retour

Maison plain-pied en L au style contemporain ou traditionnel avec suite parentale

Nombre de chambres 3

Maison plain-pied en L au style contemporain ou traditionnel avec 3 chambres dont une suite parentale.

Toiture 2x2 pentes. Grande pièce à vivre lumineuse de +39 m². Pratique avec son accès au garage intégré.

3 belles chambres dont une suite parentale avec dressing et salle de toilette équipée et faïencée comprenant un receveur douche extra-plat encastré ou une douche à l'italienne, meuble vasque avec miroir éclairé.

Une salle de bains équipée et faïencée avec receveur douche extra-plat encastré ou baignoire, meuble double vasque avec miroir éclairé,. Un WC indépendant. 

Carrelage dimensions jusqu'au 60x60 cm ou imitation parquet. Large choix de faïences.

Pompe à chaleur (chaud et froid) et Sèche-serviette dans la salle de bains et la salle d'eau. Chauffe-eau thermodynamique.

Aux normes RE 2020.  A personnaliser selon vos envies et votre budget !

Nous sommes constructeur de maisons individuelles sur mesure au style traditionnel ou contemporain, avec toutes les garanties liées à un Contrat de Construction de Maisons Individuelles CCMI (assurance dommages ouvrage, garantie de livraison à prix et délai convenus, garantie de parfait achèvement, garantie biennale et décennale). Nous sommes implanté à Béziers depuis 2007.

Pour obtenir un devis gratuitement sur la construction de cette Maison plain-pied en L au style contemporain ou traditionnel avec suite parentale, contactez-nous au 04.67.905.905 ou via le formulaire ci-dessous.

Nous écrire
Les champs indiqués par un astérisque (*) sont obligatoires