1. Accueil
  2. Plans de maisons
  3. Plain-pied
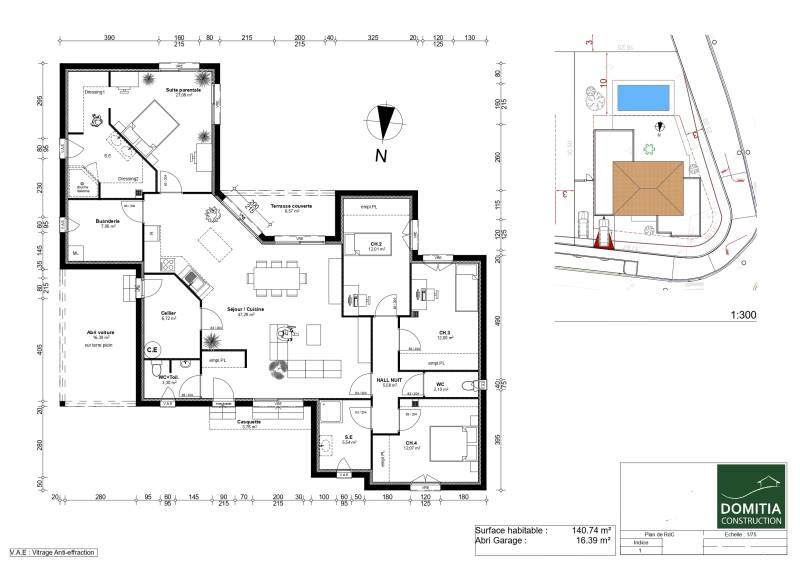
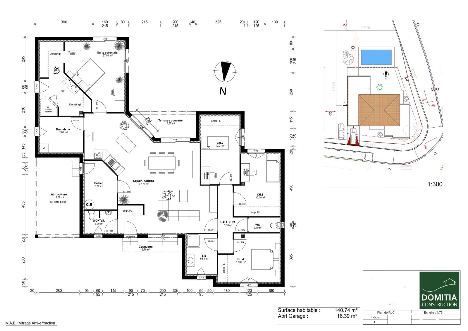
  4. Maison ultra contemporaine plain-pied de 140 m² avec 4 chambres dont une suite parentale
Retour

Maison ultra contemporaine plain-pied de 140 m² avec 4 chambres dont une suite parentale

Nombre de chambres 4

Maison ultra contemporaine plain-pied de 140 m² habitable avec 4 chambres dont une suite parentale avec dressing, salle de toilette équipée et faïencée comprenant douche à l'italienne et meuble double vasque avec miroir éclairé.

3 belles chambres de 12 m², salle de bains équipée et faïencée avec receveur douche extra-plat encastré ou baignoire, meuble vasque avec miroir éclairé, WC indépendant.

Grande pièce à vivre de 48 m² très lumineuse avec son séjour traversant et son cellier attenant, WC indépendant, buanderie. Abri voiture.

Pompe à chaleur (chaud et froid) et sèche-serviettes dans les salles d'eau. Chauffe-eau thermodynamique.

Carrelage grand format ou imitation parquet ! Large choix de faïences !

Aux normes RE 2020. A personnaliser selon vos envies et votre budget !

Nous sommes constructeur de maisons individuelles sur mesure au style traditionnel ou contemporain, avec toutes les garanties liées à un Contrat de Construction de Maisons Individuelles CCMI (assurance dommages ouvrage, garantie de livraison à prix et délai convenus, garantie de parfait achèvement, garantie biennale et décennale). Nous sommes implanté à Béziers depuis 2007.

Pour obtenir un devis gratuitement sur la construction de cette Maison ultra contemporaine plain-pied de 140 m² avec 4 chambres dont 1 suite parentale, contactez-nous au 04.67.905.905 ou via le formulaire ci-dessous.

Nous écrire
Les champs indiqués par un astérisque (*) sont obligatoires