1. Accueil
  2. Terrain avec maison
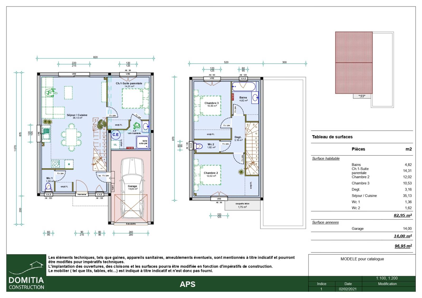
  3. PORTIRAGNES : Maison contemporaine à étage avec 3 chambres dont 1 suite parentale au rez-de-chaussée sur terrain de 400 m² à 5 minutes de la Mer Méditerranée
Retour

PORTIRAGNES : Maison contemporaine à étage avec 3 chambres dont 1 suite parentale au rez-de-chaussée sur terrain de 400 m² à 5 minutes de la Mer Méditerranée

Prix : 290 000 €
Nom du modèle DOMITIA104
Viabilisé OUI
Nombre de chambres 3
Dimension terrain 400m²

Construisez votre maison à étage de 83 m² avec 3 chambres dont une suite parentale au rez-de-chaussée sur terrain de 400 m² à Portiragnes. Village prisée située à 5 minutes de la Mer Méditerranée et du Canal du Midi, offrant toutes les commodités et infrastructures.

Belle pièce à vivre lumineuse et pratique avec son accès au garage. WC indépendant.

1 suite parentale au rez-de-chaussée avec dressing, salle d'eau équipée et faïencée avec meuble vasque, miroir éclairé et douche à l'italienne. 

A l'étage, 2 chambres avec emplacement placard, salle de bains équipée et faïencée avec meuble vasque, miroir éclairé et baignoire. 1 WC indépendant.

Pompe à chaleur, sèche-serviettes dans les salles d'eau et Chauffe-eau thermodynamique. Volets roulants motorisés et centralisés.

Carrelage dimensions jusqu'au 60x60 cm ou imitation parquet et large choix de faïences.

Norme RE 2020. Possibilité de plans personnalisés.

Pour plus de renseignements sur cette maison contemporaine à étage avec 3 chambres dont une suite parentale au rez-de-chaussée sur terrain de 400 m² à Portiragnes, contactez-nous au 04.67.905.905 ou via le formulaire ci-dessous.

Nous sommes constructeur de maisons individuelles sur mesure au style traditionnel ou contemporain, avec toutes les garanties liées à un Contrat de Construction de Maisons Individuelles CCMI (assurance dommages ouvrage, garantie de livraison à prix et délai convenus, garantie de parfait achèvement, garantie biennale et décennale). Nous sommes implanté à Béziers depuis 2007.

*Terrain proposé avec notre partenaire foncier selon disponibilités. Hors frais de notaire. Contrat de construction de maison individuelle, dans le cadre de la loi du 19/12/1990 (Hors branchements, peintures intérieures, cuisine et clôtures). Assurances et garanties du constructeur CCMI comprises (RC professionnelle, décennale, dommage ouvrage, garantie de livraison à prix et délai convenu et garantie financière).

Nous écrire
Les champs indiqués par un astérisque (*) sont obligatoires