1. Accueil
  2. Plans de maisons
  3. À étage
  4. Superbe maison à étage au style traditionnel avec ses toitures 3 et 4 pans et ses 5 chambres
Retour

Superbe maison à étage au style traditionnel avec ses toitures 3 et 4 pans et ses 5 chambres

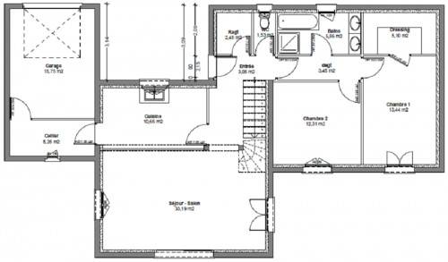
Nombre de chambres 5

Construisez votre superbe maison à étage au style traditionnel avec ses toitures 3 et 4 pans et ses 5 chambres !

Très belle pièce à vivre avec cuisine séparée, pratique avec son accès au cellier et au garage. 

2 chambres au rez-de-chaussée dont une suite parentale avec dressing, salle de bains équipée et faïencée comprenant une baignoire, une douche à l'italienne ou un receveur extra-plat,  un meuble double vasque avec miroir éclairé. Rangement dans le couloir. WC indépendant. 

A l'étage : 3 chambres, salle de bains équipée et faïencée avec un receveur douche extra-plat, un meuble vasque avec miroir éclairé et WC.

Pompe à chaleur (chaud et froid), sèche-serviette dans les salles d'eau  et chauffe-eau thermodynamique.

Carrelage dimensions 60x60 cm ou imitation parquet ! Large choix de faïences ! Aux normes RE 2020. 

Nous sommes constructeur de maisons individuelles sur mesure au style traditionnel ou contemporain, avec toutes les garanties liées à un Contrat de Construction de Maisons Individuelles CCMI (assurance dommages ouvrage, garantie de livraison à prix et délai convenus, garantie de parfait achèvement, garantie biennale et décennale). Nous sommes implanté à Béziers depuis 2007.

Pour obtenir un devis gratuitement sur la construction de cette superbe maison à étage au style traditionnel avec ces toitures 3 et  4 pans et ces 5 chambres, contactez-nous au 04.67.905.905 ou via le formulaire ci-dessous.

Nous écrire
Les champs indiqués par un astérisque (*) sont obligatoires